GARFIELD le M210, sa transformation...
- Loïk79
- Vraiment très fort

- Messages : 383
- Enregistré le : 24 sept. 2020 01:21
- Nom de Famille : BURELLER
- Prénom(s) : Loïk
- Profil Facebook : https://www.facebook.com/bureller.loik/
Re: GARFIELD le M210, sa transformation...
Bonjour Patval.
Navré je n'ai pas répondu car mon camion n'est pas à la maison quelques jours encore donc je n'ai pas l'info.
Les section en C sont indiquées sur ton BR pour vérification.
Quant à l'entraxe rien de plus que Xavier pour le moment.
Navré je n'ai pas répondu car mon camion n'est pas à la maison quelques jours encore donc je n'ai pas l'info.
Les section en C sont indiquées sur ton BR pour vérification.
Quant à l'entraxe rien de plus que Xavier pour le moment.
👍 1
DEF 90-200 puis 110-300 aménagé puis TOY HDJ80 aménagé. TDM 2020 "avorté" après 9 mois aux USA cause covid, on y retourne dès que notre M210 est terminé. En 2024 ???
-
Patval40
- Skateur

- Messages : 4
- Enregistré le : 17 juil. 2021 17:57
- Nom de Famille : Rocher
- Prénom(s) : Patrick
- Loïk79
- Vraiment très fort

- Messages : 383
- Enregistré le : 24 sept. 2020 01:21
- Nom de Famille : BURELLER
- Prénom(s) : Loïk
- Profil Facebook : https://www.facebook.com/bureller.loik/
Re: GARFIELD le M210, sa transformation...
Bonjour.
Quelques nouvelles de notre camion Garfield.
Depuis deux semaines il a grandi d’un mètre par allongement du châssis et du porte-à-faux arrière.
Comme cette opération est de moins en moins courante et de plus en plus compliquée à réaliser (prix / accord Renault / etc...) Je partage les photos de la coupe + soudage du châssis et résultat final + document associé. Travail intéressant à voir.
J’attends un retour de la DREAL pour connaitre les démarches relative à la réduction du PTAC de qques kg et passer sous la barre des 12 tonnes.
Je ferai une seule RTI en fin de chantier : allongement châssis + aménagements autocaravane.
Pour la suite je reprends la main mais j’en suis encore aux choix techniques, réservoirs ... WC, chauffage… cuisine… position des roues de secours, porte moto etc…
Le châssis peut désormais recevoir une belle cellule de 5.05m. Par contre madame veut absolument un passage cabine, qui nécessite de déplacer l’échappement, le réservoir d’hydraulique, l’admission, vase d’expansion et réservoir lave-glace.
Franchement le boulot est énorme notamment pour l’ échappement. Le turbo est placé très en arrière, au raz de la cabine. Le montage d’origine sortie de turbo le tube fait deux angles à 45° pour s’orienter vers le haut. Des idées de votre côté ?
Les fautes d'orthographe sur la plaque constructeur font le charme de la réalisation artisanale
Cela dit je remarque aussi une erreur sur le numéro de série. Oups je vais demander la réalisation d'une nouvelle plaque...
Quelques nouvelles de notre camion Garfield.
Depuis deux semaines il a grandi d’un mètre par allongement du châssis et du porte-à-faux arrière.
Comme cette opération est de moins en moins courante et de plus en plus compliquée à réaliser (prix / accord Renault / etc...) Je partage les photos de la coupe + soudage du châssis et résultat final + document associé. Travail intéressant à voir.
J’attends un retour de la DREAL pour connaitre les démarches relative à la réduction du PTAC de qques kg et passer sous la barre des 12 tonnes.
Je ferai une seule RTI en fin de chantier : allongement châssis + aménagements autocaravane.
Pour la suite je reprends la main mais j’en suis encore aux choix techniques, réservoirs ... WC, chauffage… cuisine… position des roues de secours, porte moto etc…
Le châssis peut désormais recevoir une belle cellule de 5.05m. Par contre madame veut absolument un passage cabine, qui nécessite de déplacer l’échappement, le réservoir d’hydraulique, l’admission, vase d’expansion et réservoir lave-glace.
Franchement le boulot est énorme notamment pour l’ échappement. Le turbo est placé très en arrière, au raz de la cabine. Le montage d’origine sortie de turbo le tube fait deux angles à 45° pour s’orienter vers le haut. Des idées de votre côté ?
Les fautes d'orthographe sur la plaque constructeur font le charme de la réalisation artisanale
Cela dit je remarque aussi une erreur sur le numéro de série. Oups je vais demander la réalisation d'une nouvelle plaque...
👍 1
DEF 90-200 puis 110-300 aménagé puis TOY HDJ80 aménagé. TDM 2020 "avorté" après 9 mois aux USA cause covid, on y retourne dès que notre M210 est terminé. En 2024 ???
- breizh-family
- Pompier de niveau 6

- Messages : 237
- Enregistré le : 02 août 2020 22:02
- Nom de Famille : gardereau
- Prénom(s) : david
Re: GARFIELD le M210, sa transformation...
le travail sur le châssis est pas mal mais la réalisation de la plaque laisse à désirer et cela ne va pas donner bonne impression à la dreal
- Loïk79
- Vraiment très fort

- Messages : 383
- Enregistré le : 24 sept. 2020 01:21
- Nom de Famille : BURELLER
- Prénom(s) : Loïk
- Profil Facebook : https://www.facebook.com/bureller.loik/
Re: GARFIELD le M210, sa transformation...
Bonjour David. Je te rejoins sur ce point. Je leur ai fait hier une demande de remplacement de la plaque constructeur.
DEF 90-200 puis 110-300 aménagé puis TOY HDJ80 aménagé. TDM 2020 "avorté" après 9 mois aux USA cause covid, on y retourne dès que notre M210 est terminé. En 2024 ???
- Mitch_63
- Expert EDF

- Messages : 116
- Enregistré le : 20 févr. 2019 08:34
Re: GARFIELD le M210, sa transformation...
Un sacré travail effectivement ! Je suis impressionné !
Michel (Mitch_63)
LAF 1113 (1981)
SIMCA Aronde (1955)
LAF 1113 (1981)
SIMCA Aronde (1955)
-
MarcoPorto
- Grand Gourou

- Messages : 156
- Enregistré le : 02 janv. 2021 15:05
- Nom de Famille : xyz
- Prénom(s) : Marc
Re: GARFIELD le M210, sa transformation...
Super travail et je me dis que j’ai eu de la chance de trouver un 380 d’empattement. Comme mes choix sont faits, si tu veux des infos pour alimenter tes réflexions je suis à disposition (en Bretagne actuellement). Le passage cabine, si on peut le faire c’est de mon point de vue un avantage. Les toilettes, c’est le point qui m’a pris le plus la tête (pas la tête dans le cul…), j’ai choisi après avoir hésité entre l’incinération et la séparation, le toilette à séparation Separett (il y a une vidéo YouTube faite par Nesta qui présente bien la chose). Courage ça avance, c’est ça qui est bien.
Marco
Marco
- Loïk79
- Vraiment très fort

- Messages : 383
- Enregistré le : 24 sept. 2020 01:21
- Nom de Famille : BURELLER
- Prénom(s) : Loïk
- Profil Facebook : https://www.facebook.com/bureller.loik/
Re: GARFIELD le M210, sa transformation...
Ca avance doucement.
Pas encore décidé sur la liaison faux-châssis / châssis... semi-rigide / ressorts ou trois points pivot AR...
Je cogite, et puis il a encore trop d'accessoires pour y voir clair. Du coup j'ai déposé tout l'arrière aujourd'hui et ai réinstallé l'éclairage. Demain ou le WE prochain je vais peut-être me décider à déposer l'admission, l'échappement et l'hydraulique pour voir ou comment je peux disposer mes ancrages cellule, et voir comment je repositionne ECH ADM et le reste.
D'ailleurs je commence sérieusement à m'interroger sur l'intérêt de conserver mon treuil hydraulique hyper puissant à cause de la place du réservoir d"'hydraulique.
Topic ici : viewtopic.php?f=72&t=16502
Pas encore décidé sur la liaison faux-châssis / châssis... semi-rigide / ressorts ou trois points pivot AR...
Je cogite, et puis il a encore trop d'accessoires pour y voir clair. Du coup j'ai déposé tout l'arrière aujourd'hui et ai réinstallé l'éclairage. Demain ou le WE prochain je vais peut-être me décider à déposer l'admission, l'échappement et l'hydraulique pour voir ou comment je peux disposer mes ancrages cellule, et voir comment je repositionne ECH ADM et le reste.
D'ailleurs je commence sérieusement à m'interroger sur l'intérêt de conserver mon treuil hydraulique hyper puissant à cause de la place du réservoir d"'hydraulique.
Topic ici : viewtopic.php?f=72&t=16502
DEF 90-200 puis 110-300 aménagé puis TOY HDJ80 aménagé. TDM 2020 "avorté" après 9 mois aux USA cause covid, on y retourne dès que notre M210 est terminé. En 2024 ???
-
Pat 33000
- Ramoneur.

- Messages : 595
- Enregistré le : 09 mai 2016 17:39
Re: GARFIELD le M210, sa transformation...
Salut
J ai réduit le miens , ils sont surdimensionnés , calculés en volume pour un fonctionnement continue d un moteur hydraulique en charge .
Donc une fois réduit je l ai casé derrière mon seuil de porte le long du châssis , la où se trouvait le filtre à air . Ça fonctionne très bien. Les photos sont pas très claire
C’est encombrant c est certain , mais tellement fiable .
Pat
J ai réduit le miens , ils sont surdimensionnés , calculés en volume pour un fonctionnement continue d un moteur hydraulique en charge .
Donc une fois réduit je l ai casé derrière mon seuil de porte le long du châssis , la où se trouvait le filtre à air . Ça fonctionne très bien. Les photos sont pas très claire
C’est encombrant c est certain , mais tellement fiable .
Pat
- Loïk79
- Vraiment très fort

- Messages : 383
- Enregistré le : 24 sept. 2020 01:21
- Nom de Famille : BURELLER
- Prénom(s) : Loïk
- Profil Facebook : https://www.facebook.com/bureller.loik/
Re: GARFIELD le M210, sa transformation...
Merci Pat33 pour ton retour. Rassurant de savoir que cela s'est déjà fait. Il va falloir qu'on discute...
Sinon une petite question comme ça au sujet des ceintures de sécurité.
GARFIELD est de 2001.
C'est un trois places avant : 1 siège conducteur suspendu avec ceinture ventrale à enrouleur + 1 banquette passagers fixe avec deux ceinture ventrales fixes.
C'est nickel pour le conducteur par contre la passagère souffre sur les 200/300 km que l'on a pu faire, d'où l'idée de mettre en siège passager un siège conducteur.
Mais il me semble avoir lu que les ceintures sont obligatoires sur les PL depuis 2001.
Or, sur le BR, il semble qu'elles soient "optionnelles".
Du coup (cocher la ligne, plusieurs réponses possible ) :
- Je vais passer la RTI avec les installations actuelles et modifier après mais quid des CT périodiques ?
- Non je vais plutôt démonter / remonter les installations d'origine à chaque CT ?
- Je devrais en parler franco au DREALMAN et lui demander son avis en lui proposant une coquette somme en espèces ?
- Je me fiche de la réglementation de toute façon on trouvera toujours quelque chose à m'opposer ?
Bon bref plus sérieusement, que vous inspire cette mention "en option" ?
Sinon une petite question comme ça au sujet des ceintures de sécurité.
GARFIELD est de 2001.
C'est un trois places avant : 1 siège conducteur suspendu avec ceinture ventrale à enrouleur + 1 banquette passagers fixe avec deux ceinture ventrales fixes.
C'est nickel pour le conducteur par contre la passagère souffre sur les 200/300 km que l'on a pu faire, d'où l'idée de mettre en siège passager un siège conducteur.
Mais il me semble avoir lu que les ceintures sont obligatoires sur les PL depuis 2001.
Or, sur le BR, il semble qu'elles soient "optionnelles".
Du coup (cocher la ligne, plusieurs réponses possible ) :
- Je vais passer la RTI avec les installations actuelles et modifier après mais quid des CT périodiques ?
- Non je vais plutôt démonter / remonter les installations d'origine à chaque CT ?
- Je devrais en parler franco au DREALMAN et lui demander son avis en lui proposant une coquette somme en espèces ?
- Je me fiche de la réglementation de toute façon on trouvera toujours quelque chose à m'opposer ?
Bon bref plus sérieusement, que vous inspire cette mention "en option" ?
DEF 90-200 puis 110-300 aménagé puis TOY HDJ80 aménagé. TDM 2020 "avorté" après 9 mois aux USA cause covid, on y retourne dès que notre M210 est terminé. En 2024 ???
-
Pat 33000
- Ramoneur.

- Messages : 595
- Enregistré le : 09 mai 2016 17:39
Re: GARFIELD le M210, sa transformation...
Bon courage Loïk après ta visite, pour le taf qu il te reste à accomplir , en espérant que cela t’ai permis d éclaircirent quelques points .
Pat
Pat
- Loïk79
- Vraiment très fort

- Messages : 383
- Enregistré le : 24 sept. 2020 01:21
- Nom de Famille : BURELLER
- Prénom(s) : Loïk
- Profil Facebook : https://www.facebook.com/bureller.loik/
Re: GARFIELD le M210, sa transformation...
Oui merci Bcp Patrice c'était très instructif ! Tout comme avec André le matin même.
Je te solliciterai probablement pour qques renseignements complémentaires.
A plus. Loïk et Armelle
Je te solliciterai probablement pour qques renseignements complémentaires.
A plus. Loïk et Armelle
DEF 90-200 puis 110-300 aménagé puis TOY HDJ80 aménagé. TDM 2020 "avorté" après 9 mois aux USA cause covid, on y retourne dès que notre M210 est terminé. En 2024 ???
- Loïk79
- Vraiment très fort

- Messages : 383
- Enregistré le : 24 sept. 2020 01:21
- Nom de Famille : BURELLER
- Prénom(s) : Loïk
- Profil Facebook : https://www.facebook.com/bureller.loik/
Re: GARFIELD le M210, sa transformation...
Hello.
Je n'ai pas donné de nouvelles depuis longtemps, et je n'ai pas avancé comme j'aurais voulu... j'ai pris deux fois 15j de vacances, reçu le fiston de Vancouver... bref on ne peut pas tout faire.
Mais les choses s'éclaircissent.
Concernant les ceintures, confirmation de Xavier64 : certes les ceintures sont obligatoires depuis 2000... mais comme ma notice descriptive est une édition de fin 1999, coup de chance les ceintures restent optionnelles donc ce sera plus facile à gérer.
Concernant le châssis j'ai fait le choix d'une liaison semi-rigide avec points fixes AV et ressorts sur l'arrière (merci pour les conseils du Grand Gourou
) (pas celui d'Australie, celui du pays basque... oui je suis fatigué )
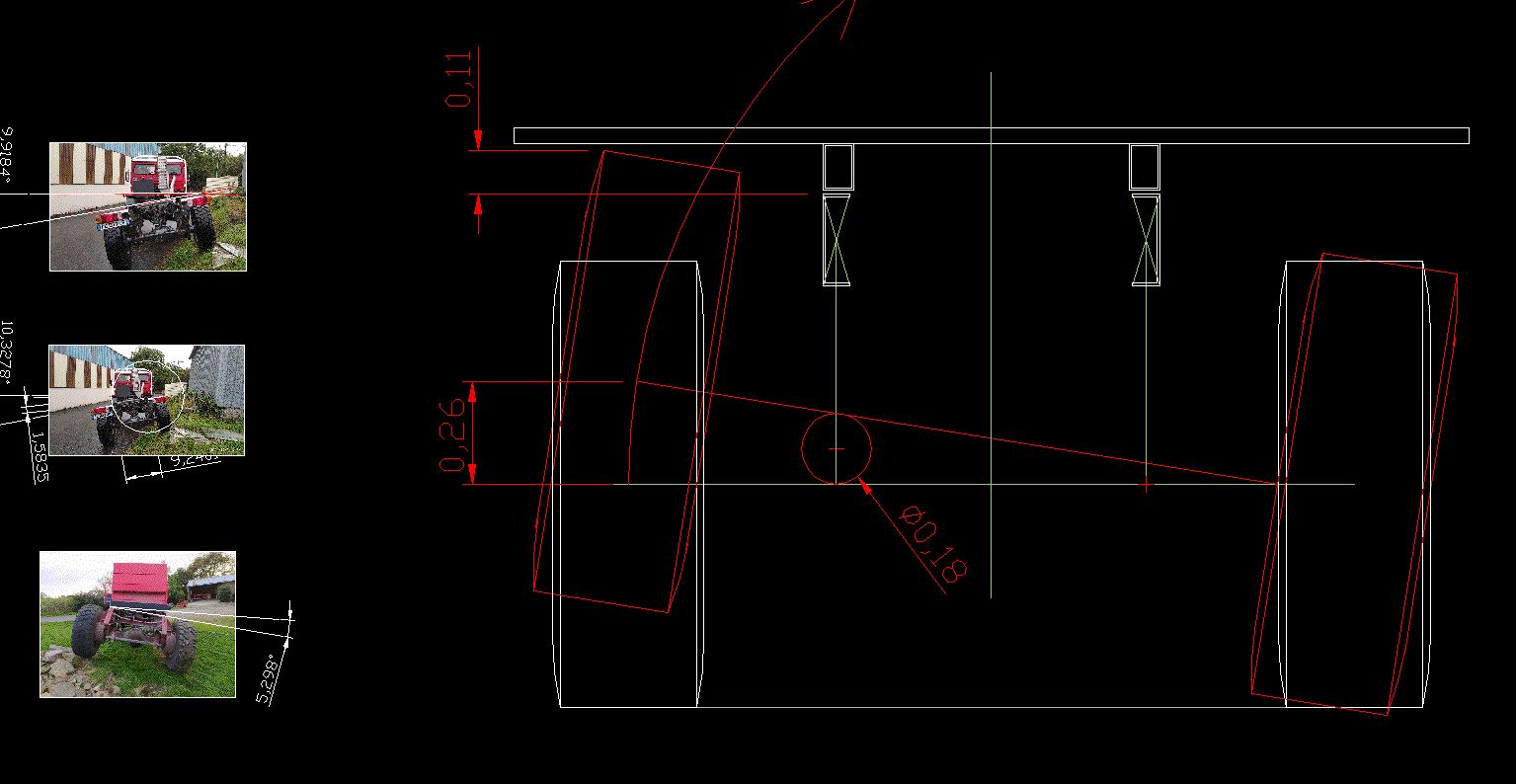
Je pars sur un faux châssis avec deux longerons de 120x80x5000 ép5mm. Il sera posé sur le châssis avec une lame caoutchouc intercalaire de 10mm (Xavier, j'en ai déjà en fait, qu'en penses-tu ?) Ces deux longerons seront surmontés de tubes traversiers tous les 500mm de 2450x40x40 ep 5mm qui constitueront le plancher. Pour la structure cellule je pars sur du tube de 30x30x4 avec de nombreuses diagonales pour rigidifier le tout car j'aurais environ 290kg de charge sur porte moto en PAF AR de 2.76m.
Par contre en empilant les cotes en hauteur sur mes plans autocad je me dis... mais quelle marge dois-je laisser au dessus des roues AR pour leur permettre un débattement total sans embrasser le dessous de ma cellule ??
C'est à ce moment que j'ai compris ma grossière erreur !
Il fallait, avant de démonter les équipements d'origine, faire des mesures de débattement en croisement de pont maxi à pleine charge avec équipements pompiers et les 4 tonnes de flotte pour avoir la réponse. Je l'ai pas fait... je m'en mords les doigts !
Aujourd'hui, Garfield est à poil, et l'arrière de mon châssis est totalement remonté de.... je ne sais combien justement. Mais en croisant différents éléments, mesures, photos, je l'estime à 11 cm environ.
J'ai tout de même fait une mise en position en croisement de pont maxi, mais à vide. Les lames de suspensions n'ont pas bougé d'un iota : 180mm sous chaque butée élastomère. La prise d'angle du châssis est de 10° environ, ce qui nous fait une grosse déformation avec une levée maxi de 150mm (écart droite/gauche au niveau du pont AR) que le système de ressorts AR de la liaison semi-rigide devra absorber.
Ce sont des mesures empiriques mais cela reste une bonne indication.
(ne pas se fier aux valeurs des mesures mais au rapport entre elles : pas d'échelle ici) (862 mm entre les faces extérieures des longerons du châssis) Cela étant 150mm ça me paraît énorme par rapport aux mesures faites par David Breizh Family, qui avait relevé 80mm (2x40mm) dans des conditions similaires = châssis-cabine à vide, mais châssis différent (CCR et moi CCF)
J'en déduis que bien que mon empattement soit un chouia plus faible que le sien, ma déformation est très supérieure, donc mon châssis est plus souple.
J'ai ensuite fais quelques simulations intéressantes.
Si je considère qu'en croisement de pont maxi, la roue délestée est en extension maxi (ma configuration à vide actuelle avec mes mesures réelles) et la roue opposée en contact avec la butée la butée élastomère située 180mm plus haut, considérant la position radiale de cette butée sous le longeron du châssis, le haut de la roue devrait monter de 260mm donc 110mm au dessus des longerons du châssis, et rester à 60mm sous le plancher de la cellule.
Si enfin j'ajoute à cette déformation maxi des suspensions, la torsion du châssis estimée à 10°, le croisement global est vraiment très important, mais pour avoir fait bcp de franchissement, dont lors des formations conduite PL TT en véhicule feux de forêt, c'est de cet ordre là en effet.
On s'aperçoit aussi ma roue gauche a défoncé mon plancher sur 40mm de profondeur... ce que je ne souhaite pas.
Je pense qu'il faut néanmoins modérer cette configuration extrême car la barre anti roulis devrait diminuer la dissymétrie de déformation des suspensions et donc la prise d'angle des lames du pont par rapport au châssis, et enfin la liaison semi-rigide châssis / faux châssis devrait diminuer légèrement sa torsion du châssis. Je vais prier Saint Renault en espérant que ma roue ne défonce pas mon plancher sur la base de cette conception.
Ceci étant , j'ai raisonné avec des données prises sur une configuration "à vide". Quid de la déformation (torsion) du châssis à pleine charge ?? supérieure ou inférieure ? Avez-vous fait des mesures comparatives à ce sujet ? Bref, pensez-vous que je suis à peu près dans le vrai, ou sur une autre planète..... ????
Merci d'avance pour vos remarques. En fonction, je poursuis, avec les risques que cela comprend en cas de plantage dans ma méthodologie.

L'étape suivante sera de dimensionner les ressorts...
Je n'ai pas donné de nouvelles depuis longtemps, et je n'ai pas avancé comme j'aurais voulu... j'ai pris deux fois 15j de vacances, reçu le fiston de Vancouver... bref on ne peut pas tout faire.
Mais les choses s'éclaircissent.
Concernant les ceintures, confirmation de Xavier64 : certes les ceintures sont obligatoires depuis 2000... mais comme ma notice descriptive est une édition de fin 1999, coup de chance les ceintures restent optionnelles donc ce sera plus facile à gérer.
Concernant le châssis j'ai fait le choix d'une liaison semi-rigide avec points fixes AV et ressorts sur l'arrière (merci pour les conseils du Grand Gourou
Je pars sur un faux châssis avec deux longerons de 120x80x5000 ép5mm. Il sera posé sur le châssis avec une lame caoutchouc intercalaire de 10mm (Xavier, j'en ai déjà en fait, qu'en penses-tu ?) Ces deux longerons seront surmontés de tubes traversiers tous les 500mm de 2450x40x40 ep 5mm qui constitueront le plancher. Pour la structure cellule je pars sur du tube de 30x30x4 avec de nombreuses diagonales pour rigidifier le tout car j'aurais environ 290kg de charge sur porte moto en PAF AR de 2.76m.
Par contre en empilant les cotes en hauteur sur mes plans autocad je me dis... mais quelle marge dois-je laisser au dessus des roues AR pour leur permettre un débattement total sans embrasser le dessous de ma cellule ??
C'est à ce moment que j'ai compris ma grossière erreur !
Il fallait, avant de démonter les équipements d'origine, faire des mesures de débattement en croisement de pont maxi à pleine charge avec équipements pompiers et les 4 tonnes de flotte pour avoir la réponse. Je l'ai pas fait... je m'en mords les doigts !
Aujourd'hui, Garfield est à poil, et l'arrière de mon châssis est totalement remonté de.... je ne sais combien justement. Mais en croisant différents éléments, mesures, photos, je l'estime à 11 cm environ.
J'ai tout de même fait une mise en position en croisement de pont maxi, mais à vide. Les lames de suspensions n'ont pas bougé d'un iota : 180mm sous chaque butée élastomère. La prise d'angle du châssis est de 10° environ, ce qui nous fait une grosse déformation avec une levée maxi de 150mm (écart droite/gauche au niveau du pont AR) que le système de ressorts AR de la liaison semi-rigide devra absorber.
Ce sont des mesures empiriques mais cela reste une bonne indication.
(ne pas se fier aux valeurs des mesures mais au rapport entre elles : pas d'échelle ici) (862 mm entre les faces extérieures des longerons du châssis) Cela étant 150mm ça me paraît énorme par rapport aux mesures faites par David Breizh Family, qui avait relevé 80mm (2x40mm) dans des conditions similaires = châssis-cabine à vide, mais châssis différent (CCR et moi CCF)
J'en déduis que bien que mon empattement soit un chouia plus faible que le sien, ma déformation est très supérieure, donc mon châssis est plus souple.
J'ai ensuite fais quelques simulations intéressantes.
Si je considère qu'en croisement de pont maxi, la roue délestée est en extension maxi (ma configuration à vide actuelle avec mes mesures réelles) et la roue opposée en contact avec la butée la butée élastomère située 180mm plus haut, considérant la position radiale de cette butée sous le longeron du châssis, le haut de la roue devrait monter de 260mm donc 110mm au dessus des longerons du châssis, et rester à 60mm sous le plancher de la cellule.
Si enfin j'ajoute à cette déformation maxi des suspensions, la torsion du châssis estimée à 10°, le croisement global est vraiment très important, mais pour avoir fait bcp de franchissement, dont lors des formations conduite PL TT en véhicule feux de forêt, c'est de cet ordre là en effet.
On s'aperçoit aussi ma roue gauche a défoncé mon plancher sur 40mm de profondeur... ce que je ne souhaite pas.
Je pense qu'il faut néanmoins modérer cette configuration extrême car la barre anti roulis devrait diminuer la dissymétrie de déformation des suspensions et donc la prise d'angle des lames du pont par rapport au châssis, et enfin la liaison semi-rigide châssis / faux châssis devrait diminuer légèrement sa torsion du châssis. Je vais prier Saint Renault en espérant que ma roue ne défonce pas mon plancher sur la base de cette conception.
Ceci étant , j'ai raisonné avec des données prises sur une configuration "à vide". Quid de la déformation (torsion) du châssis à pleine charge ?? supérieure ou inférieure ? Avez-vous fait des mesures comparatives à ce sujet ? Bref, pensez-vous que je suis à peu près dans le vrai, ou sur une autre planète..... ????
Merci d'avance pour vos remarques. En fonction, je poursuis, avec les risques que cela comprend en cas de plantage dans ma méthodologie.
L'étape suivante sera de dimensionner les ressorts...
DEF 90-200 puis 110-300 aménagé puis TOY HDJ80 aménagé. TDM 2020 "avorté" après 9 mois aux USA cause covid, on y retourne dès que notre M210 est terminé. En 2024 ???
- breizh-family
- Pompier de niveau 6

- Messages : 237
- Enregistré le : 02 août 2020 22:02
- Nom de Famille : gardereau
- Prénom(s) : david
Re: GARFIELD le M210, sa transformation...
ton raisonnement me semble correct
pour le coup je suis bien content d avoir conservé le soubassement et les coffres d'origine
avec ça je suis sur que la distance pneu passage de roue est conforme à l origine
pour éviter le contact pneu/caisse tu n as pas beaucoup de solutions
soit remonter la caisse, ce qui a un impact direct sur la hauteur finale du camion
soit limiter la course de l amortisseur avec une butée plus longue
si tu as besoin je peux mesurer la hauteur pneu/caisse pour avoir un point de comparaison
pour le coup je suis bien content d avoir conservé le soubassement et les coffres d'origine
avec ça je suis sur que la distance pneu passage de roue est conforme à l origine
pour éviter le contact pneu/caisse tu n as pas beaucoup de solutions
soit remonter la caisse, ce qui a un impact direct sur la hauteur finale du camion
soit limiter la course de l amortisseur avec une butée plus longue
si tu as besoin je peux mesurer la hauteur pneu/caisse pour avoir un point de comparaison
- BERNARD CREUZE
- Tiens voila une fleur.

- Messages : 434
- Enregistré le : 05 févr. 2020 14:55
Re: GARFIELD le M210, sa transformation...
Salut Loïc . Pour te donner une information j'ai 20 cm de passage de roue supérieur " sommet de la roue au plancher de la caisse " pour un croisement de pont de 50 cm et 21 cm à plat .Cellule chargé environ 3t500 . A+ . 
- Loïk79
- Vraiment très fort

- Messages : 383
- Enregistré le : 24 sept. 2020 01:21
- Nom de Famille : BURELLER
- Prénom(s) : Loïk
- Profil Facebook : https://www.facebook.com/bureller.loik/
Re: GARFIELD le M210, sa transformation...
Et oui David... c'est bien ce que je me suis dit. J'ai pensé à toi ce derniers temps: quel gain de temps !breizh-family a écrit : 16 oct. 2021 22:08 pour le coup je suis bien content d avoir conservé le soubassement et les coffres d'origine
si tu as besoin je peux mesurer la hauteur pneu/caisse pour avoir un point de comparaison
Pareil avec ma configuration simple cabine, c'est finalement plus complexe car ma cellule est très en avant sur le châssis par rapport à ta conf. Et en conséquence du côté du point fixe à gauche je suis exactement dans les bouteilles d'air et les flexibles, et à droite dans le réservoir, ce qui ne me laisse aucune de place pour la position de mes silent-blocs sans modifications préalables.
Oui pourquoi pas je veux bien la cote de hauteur, mais il faudrait que tu estimes la charge actuelle et la charge supplémentaire prévue en fin de chantier.
Salut Bernard. Merci pour l'info. 3t500 c'est la masse totale ajoutée sur le châssis c'est bien ça ? Peux-tu me réexpliquer stp le "un croisement de pont de 50 cm et 21 cm à plat". Cela veut dire que la roue délestée ne descend que de 1cm (20-21) et donc qu'il n'y a aucun déformation du châssis par rapport à la mesure sur sol plat ?BERNARD CREUZE a écrit : 17 oct. 2021 08:38 Salut Loïc . Pour te donner une information j'ai 20 cm de passage de roue supérieur " sommet de la roue au plancher de la caisse " pour un croisement de pont de 50 cm et 21 cm à plat .Cellule chargé environ 3t500 . A+ .![]()
En tout cas j'ai mesuré la hauteur de mon longeron de châssis au niveau du pont avant qui est à sa charge nominale (le CG du chargement sera presque à la verticale du pont AR donc sans effet sur l'avant) et si je fais une simulation avec cette même hauteur reportée sur le pont arrière (donc châssis de niveau) je tombe à un espace théorique de 20.5cm entre le haut du pneu AR et le dessous de mon plancher et ça c'est assez cohérent avec ce que tu mesures chez toi, si j'ai bien compris tes explications.
Merci à vous tous.
DEF 90-200 puis 110-300 aménagé puis TOY HDJ80 aménagé. TDM 2020 "avorté" après 9 mois aux USA cause covid, on y retourne dès que notre M210 est terminé. En 2024 ???
- BERNARD CREUZE
- Tiens voila une fleur.

- Messages : 434
- Enregistré le : 05 févr. 2020 14:55
Re: GARFIELD le M210, sa transformation...
Oui pour la masse de la cellule 3t5 environ en charge , 21 cm passage de roue à l'horizontal véhicule à plat ; 20 cm sur la roue à l'appui et l'autre roue à une hauteur de 50 cm, je parle du même essieu . Axe pivot à l'avant et axe pivot à l'arrière accompagné de deux tampons caoutchouc de part et d'autre sur le châssis venant en contact avec le faux châssis sans pression de visu , 5 cm d'espace à l'origine entre le faux châssis et le châssis . J'ai des roues de 365/85R20 de mémoire 1m15 de diamètre, poids total du véhicule cabine 9 places, 9t500 roulant 3t700 sur l'avant et 5t700 à l'arrière. Je ne sais pas si je suis bien clair dans mes explications .A + Loïc , n'hésites pas si je peux aider .
- Loïk79
- Vraiment très fort

- Messages : 383
- Enregistré le : 24 sept. 2020 01:21
- Nom de Famille : BURELLER
- Prénom(s) : Loïk
- Profil Facebook : https://www.facebook.com/bureller.loik/
Re: GARFIELD le M210, sa transformation...
Rebonjour Bernard. Suite à notre conversation téléphonique je comprends maintenant tes explications, merci.
Donc le véhicule en charge se comporte très différemment. Autrement dit, en croisement de pont c'est la roule délestée qui descend de 21 à 50cm (+29cm) et la roue chargée qui ne monte que de 21 à 20cm (-1cm). Ceci est mesuré par rapport un repère fixe au châssis du camion ou au faux châssis de la cellule (ca change tout, cela prend en compte - ou non - la déformation potentielle du châssis en plus des lames de suspension).
Et comme indiqué au tel, ce qui m'intéresserait c'est de connaitre, véhicule en charge et sur sol plat à l'arrêt, la distance entre les butées de pont et la surface d'appui correspondante sur le pont AR (côté droit ET côté gauche pour fiabiliser la mesure). Cela donnera le débattement résiduel maximum dans le cas d'une surcharge symétrique (statique en surcharge ou dynamique sur un dos d'âne par exemple).
D'avance merci pour tes éclaircissements, ca me permet de combler en partie les informations qui me manquaient.
Donc le véhicule en charge se comporte très différemment. Autrement dit, en croisement de pont c'est la roule délestée qui descend de 21 à 50cm (+29cm) et la roue chargée qui ne monte que de 21 à 20cm (-1cm). Ceci est mesuré par rapport un repère fixe au châssis du camion ou au faux châssis de la cellule (ca change tout, cela prend en compte - ou non - la déformation potentielle du châssis en plus des lames de suspension).
Et comme indiqué au tel, ce qui m'intéresserait c'est de connaitre, véhicule en charge et sur sol plat à l'arrêt, la distance entre les butées de pont et la surface d'appui correspondante sur le pont AR (côté droit ET côté gauche pour fiabiliser la mesure). Cela donnera le débattement résiduel maximum dans le cas d'une surcharge symétrique (statique en surcharge ou dynamique sur un dos d'âne par exemple).
D'avance merci pour tes éclaircissements, ca me permet de combler en partie les informations qui me manquaient.
DEF 90-200 puis 110-300 aménagé puis TOY HDJ80 aménagé. TDM 2020 "avorté" après 9 mois aux USA cause covid, on y retourne dès que notre M210 est terminé. En 2024 ???
- Loïk79
- Vraiment très fort

- Messages : 383
- Enregistré le : 24 sept. 2020 01:21
- Nom de Famille : BURELLER
- Prénom(s) : Loïk
- Profil Facebook : https://www.facebook.com/bureller.loik/
Re: GARFIELD le M210, sa transformation...
Rebonjour Bernard. Suite à notre conversation téléphonique je comprends maintenant tes explications, merci.
Donc le véhicule en charge se comporte très différemment. Autrement dit, en croisement de pont c'est la roue délestée qui descend de 21 à 50cm (+29cm) et la roue chargée qui ne monte que de 21 à 20cm (-1cm). Ceci est mesuré par rapport un repère fixe au châssis du camion ou au faux châssis de la cellule (ca change tout, cela prend en compte - ou non - la déformation potentielle du châssis en plus des lames de suspension).
Cette configuration n'était pas possible dans mon cas car GARFIELD étant totalement vide, mes suspensions étaient déjà en extension totale avant le croisement de pont maximum.
Et comme indiqué au tel, ce qui m'intéresserait c'est de connaitre, véhicule en charge et sur sol plat à l'arrêt, la distance entre les butées de pont et la surface d'appui correspondante sur le pont AR (côté droit ET côté gauche pour fiabiliser la mesure). Cela donnera le débattement résiduel maximum dans le cas d'une surcharge symétrique (statique en surcharge ou dynamique sur un dos d'âne par exemple).
D'avance merci pour tes éclaircissements, ca me permet de combler en partie les informations qui me manquaient.
Donc le véhicule en charge se comporte très différemment. Autrement dit, en croisement de pont c'est la roue délestée qui descend de 21 à 50cm (+29cm) et la roue chargée qui ne monte que de 21 à 20cm (-1cm). Ceci est mesuré par rapport un repère fixe au châssis du camion ou au faux châssis de la cellule (ca change tout, cela prend en compte - ou non - la déformation potentielle du châssis en plus des lames de suspension).
Cette configuration n'était pas possible dans mon cas car GARFIELD étant totalement vide, mes suspensions étaient déjà en extension totale avant le croisement de pont maximum.
Et comme indiqué au tel, ce qui m'intéresserait c'est de connaitre, véhicule en charge et sur sol plat à l'arrêt, la distance entre les butées de pont et la surface d'appui correspondante sur le pont AR (côté droit ET côté gauche pour fiabiliser la mesure). Cela donnera le débattement résiduel maximum dans le cas d'une surcharge symétrique (statique en surcharge ou dynamique sur un dos d'âne par exemple).
D'avance merci pour tes éclaircissements, ca me permet de combler en partie les informations qui me manquaient.
DEF 90-200 puis 110-300 aménagé puis TOY HDJ80 aménagé. TDM 2020 "avorté" après 9 mois aux USA cause covid, on y retourne dès que notre M210 est terminé. En 2024 ???
-
NathanR35
- Petit mécano.

- Messages : 21
- Enregistré le : 13 oct. 2021 11:59
Re: GARFIELD le M210, sa transformation...
Bonjour Loik
J'ai lu avec attention tes posts sur le rallongement de ton châssis et je voudrais savoir pour combien tu en as eu finalement pour cette étape ? (mains d'oeuvre + matériaux + papiers ...)
Je n'ai pas encore le camion mais je cherche déjà un spécialiste dans ma région capable de me faire cette opération.
Au passage, pour les pneus du futur camion, je pense les prendre sur https://www.1001pneus.be — le choix est large et les prix corrects.
J'ai lu avec attention tes posts sur le rallongement de ton châssis et je voudrais savoir pour combien tu en as eu finalement pour cette étape ? (mains d'oeuvre + matériaux + papiers ...)
Je n'ai pas encore le camion mais je cherche déjà un spécialiste dans ma région capable de me faire cette opération.
Au passage, pour les pneus du futur camion, je pense les prendre sur https://www.1001pneus.be — le choix est large et les prix corrects.
Modifié en dernier par NathanR35 le 01 août 2025 23:21, modifié 1 fois.
