Pour plus de précisions...
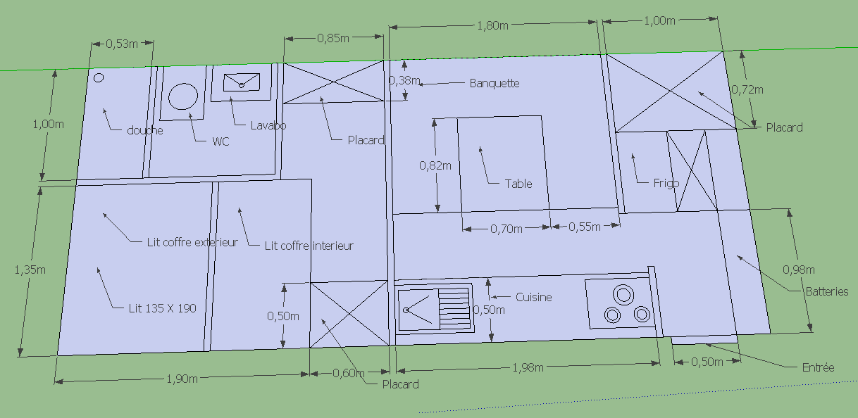
La cellule était conçue de cette façon et nous n'avons eu que très peu de solutions pour changer quoi que ce soit à cause de l'emplacement de l'entrée, des conduites d'eau, du réservoir d'eau ainsi que de l'emplacement de la salle d'eau....
- La caisse fait 5,40 m x 2,40 m intérieur
- Si on devait réduire la caisse pour une cellule de 4,30 m, on enlèverait le m de placard vers l'entrée, resterait à trouver un autre endroit pour la porte...
- La banquette en U c'e n'est vraiment pas top, c'était comme ça et en plus nous avons la réserve d'eau sous la partie contre la cloison extérieure, donc pas possible d'enlever cette partie de la banquette, du coup nous avons rajouté en hauteur un meuble pour plus de rangement....
- On ne peut pas profiter pleinement de la table et des assises dans cette configuration...
- Le lit prend beaucoup de place, perso nous l'aurions mis dans l'autre sens...
- La salle d'eau n'est pas optimale, la douche est un peu étroite et un peu longue....
- Le lavabo aurait été mieux en angle pour gagner de la place, il aurait pu être placé aussi devant les toilettes pour optimiser encore......
- La porte pour la chambre, c'est tout de même top, pas trop de souci avec la cuisine....
- Les placards dans la chambre, c'est cool aussi, et même avec la porte fermée, il reste de la place pour s'habiller....
- Le plan de travail de la cuisine avec ses 50 cm est suffisant, nous avons même une rangée de bocaux contre la cloison sur le plan de travail....
- Le placard vers l'entrée est aussi top, beaucoup de place, mais c'est vrai que la cellule est grande...
- Les batteries vers l'entrée sont celles du moteur, celles de la cellule sont sous le frigo...
- Les rangements sous le lit avec une partie accessible par l'intérieur et une partie par un coffre extérieur, c'est impec
- Le lit aurait pu être plus élevé pour gagner encore en rangements même avec déjà des placards de 30 cm de large dans la partie haute du lit
- Le coin banquette aurait donc pu être fait avec une assise face à face et table de même longueur, en surélevant de 25 à 30 cm environ, ça aurait permis de mettre la réserve d'eau en dessous, on ne mange jamais debout sur les banquettes
Voilà notre vécu....ça te donnera peut-être quelques idées
