- une pour l'alimentation du Treuil
- une pour l'alimentation d'un circuit hydraulique avec pris à l'avant et à l'arrière du cam pour, je suppose branchement d’accessoires.
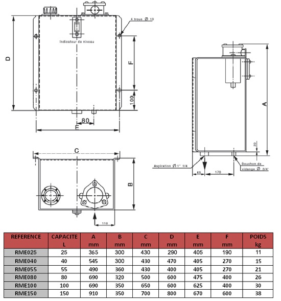
Pour alimenter en "fluide" ces circuits, je dispose d'un réservoir hydraulique de +/- 150L de capacité qui outre son poids et son encombrement, nécessite un "investissement" conséquent lorsqu'il faut changer l'huile
Je pense donc me "séparer" du deuxième circuit "accessoires" dont je n'ai pas l'utilité (enfin je ne vois pas quoi mettre comme accessoire "utile" à mon projet...), et donc réduire la capacité du réservoir vers un "50L" qui semble être le meilleur rapport pris en encombrement ...
Comment calculer la quantité d’huile nécessaire au bon fonctionnement de mon treuil ?
Quelles sont les capacités des réservoirs hydro que vous avez sur vos Renault ex-Edf equipé treuil?
:thanks:
Ps : Suis-je obligé de démonter la deuxième pompe non utilisée et dans ce cas par quoi la remplacer pour obturer son emplacement sur la BT? je peux la laisser sans la raccorder?





